Hythe Medical Centre
New health facility
Welcome to our project webpage where you can learn more about proposals to relocate Hythe Medical Centre into a permanent location, by reconfiguring the building which currently functions as The Hythe Centre.
This project is being led by the NHS in North West Surrey, Hythe Medical Centre and specialist health and care developer, Prime.
About Prime
Prime are specialist developers of health and care property, and act as strategic estates advisors to the NHS in North West Surrey. We are helping them plan the space health and care is delivered in, making the most of the properties they already have and developing new ones when it is needed.
We have a wealth of experience in creating modern high quality clinical buildings which enhance the experiences of staff and patients. We have developed 103 medical centres in the UK and Ireland over the last 30 years.
We believe community input is an asset to development and we will seek to build close ties to the community as we work to design a solution that reflects the needs of both the NHS and local people.
Why is a new building needed?
A medical centre specifically designed to serve current patients and future generations
Local people will be aware that Hythe Medical Centre has been operating from modular cabin-style accommodation for the last 15 years. Staff have worked hard to continue to deliver outstanding care for patients but the space available limits the services they can provide.
The current accommodation has no storage space and limited space for the administrative team to work alongside their colleagues. Buildings of this type are not intended for long-term use. A new, permanent medical centre would offer a much-improved experience for staff and patients alike.
In the coming weeks we intend to submit a planning application to enable us to convert The Hythe Centre into a new health facility for the Hythe Medical Centre.
 
                            How the new building could look
 
                
                            Where will the new medical centre be?
The proposed site for the new medical centre is the building currently known as The Hythe Centre.
The community centre, which is owned and operated by Runnymede Borough Council, has been under utilised for some time. Working alongside the NHS in North West Surrey, Runnymede Borough Council have identified an opportunity to make better use of the building and offer more value to the community by creating a facility tailored to meet the needs of modern health care delivery.
Given that The Hythe Centre is immediately adjacent to the current temporary building, the move will create no material disruption for patients or staff, who will continue to visit and work in the same location but will enjoy a greatly improved physical environment.
What do we aim to deliver?
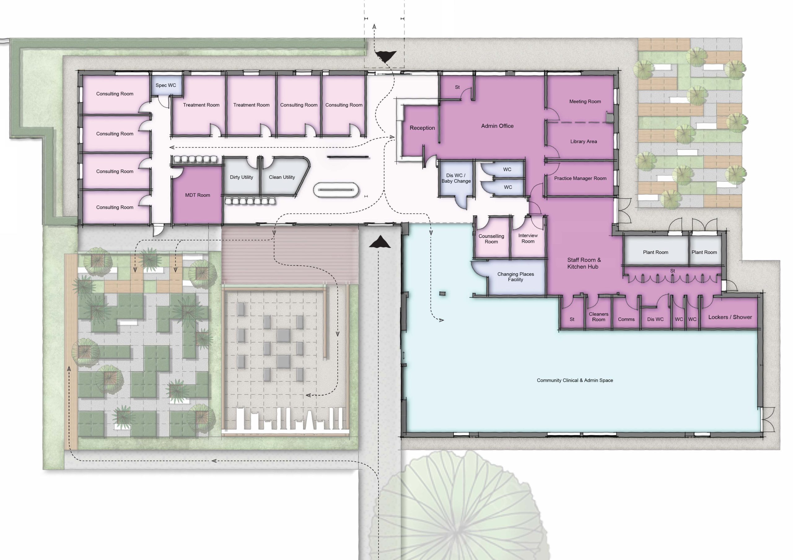
The outer shell of the existing building will change very little. Some new windows will be created to provide natural light for new consulting and treatment rooms and office space.
Inside the building will be altered entirely to create a modern, high quality and fit for purpose health centre.
There will be eight consulting and clinical rooms designed to offer an ideal patient experience. We will also create office space to allow administrative staff to work alongside the clinical team, offering a seamless service to patients. Staff will also benefit from the addition of welfare space in which to take breaks.
Not all of the space will be used by Hythe Medical Centre. The project team will work alongside NHS Surrey Heartlands Integrated Care Board to determine the best use for the remaining space. All areas will be created with comfort, dignity and accessibility at the heart of design. If there are features which you would find particularly useful, please let us know by speaking to the project team or using our feedback form.
 
                
                            Parking
As part of the works, some of the existing car parking will be reconfigured to provide additional spaces for disabled users.
Other than these small changes, it is envisaged the car park will function as it currently does by continuing to serve the patients of Hythe Medical Centre and the general public using the adjoining open space.
 
                            Your questions
How long will it take for The Hythe Centre to be turned into a health centre?
The next step is to apply for planning permission to change the use of the building from a community centre to a medical centre. Once this is achieved, construction work on the building would take approximately nine months.
Will my medical team be changing as a result of this project?
No, this project is all about providing a new, modern environment for your current team at Hythe Medical Centre to work from.
What will happen during construction?
Care will continue to be delivered from the current modular cabins of Hythe Medical Centre while the new facility is being worked on. Parking may be a little more limited during this time as some spaces may need to be used to create a site compound, a space which construction workers use as their site office. There will also be some security fencing around the building during construction to ensure everyone’s safety.
What will happen to the remaining hall space?
Surrey Heartlands Integrated Care Board are considering how to make the best use of this space for other health-related services.
Where will the groups currently using The Hythe Centre go?
Runnymede Borough Council are speaking with current regular users of The Hythe Centre to find suitable alternative premises nearby. Options being explored include Manor Farm Centre, St Pauls Church, Chertsey Hall and the Civic Offices. This work is ongoing.
 
                
                            The Prime Foundation
In addition to developing health and care infrastructure within communities across the UK, we’re committed to enhancing the lives of the people who live and work there too.
That’s why we founded the Prime Foundation – a registered charity, actively supporting community projects in neighbourhoods where we’ve built new schemes.
The legacy of our projects isn’t just the bricks and mortar – it’s about championing a proactive approach to healthcare. To build a future where can improve the wellbeing of communities and reduce future burdens upon our health and care services. With each new project, we donate a proportion of our profits to the Prime Foundation – helping fund schemes such as sensory gardens, sports equipment and community resources.
Project update
Development
Consultation
Planning Permission
Financial Close
In Construction
Phase 3
Planning Permission
 
            
         
            
         
            
         
            
         
            
         
            
         
            
         
            
         
            
         
            
         
            
         
            
        