Ross-on-Wye

Care home

Thank you for visiting our page to learn more about proposals to develop a new care home at the south entrance to Starling Road, adjacent to St Mary’s Garden Village estate. This webpage is a place to view plans, learn more about the need for the new development and to keep up to date with progress on the project.

Thank you for taking the time to find out about proposals to develop a new care home at the south entrance to Starling Road, adjacent to St Mary’s Garden Village estate.

Prime is a specialist developer of health and care property, based in Worcester but working across the country. We have a wealth of experience in delivering care home projects which put local need at the heart of development, delivering thoughtfully-designed care homes which enrich
the area, and provide space for later-life living within the heart of community.

We believe public input is an asset to development and will seek to build close ties to the community as we work to design a solution that reflects the needs of the community.


Why is a new care home needed?

Care fit for the future

Herefordshire Council has identified a significant need for new care home bedrooms in the county, particularly for complex and dementia care needs.

In 2020, Ross-on-Wye was advised as having a shortfall of 106 care home beds, with an additional 155 being required by 2041.

We are seeking to develop a facility which delivers a high quality of care and accommodation, which enables local people to stay close to friends and family.

Rear view of a building as a computer generated image

Site location

Aerial image showing site location for care home

The site is located to the south of St Mary’s Garden Village, via the southern entrance to Starling Road.

It would be located approximately a mile north east of the town centre and have good accessibility to the wider area via the A40 to the M50, Hereford, Gloucester and Monmouth.


Site plan

Site plan with care home in situ

The care home

What do we aim to deliver?

The proposed care home will provide high-quality care accommodation on two floors, with 70 single occupancy bedrooms, each equipped with a full en-suite wet room. These will be complemented by spacious communal areas which bring people together.

The care home would be capable of caring for residents of all dependency levels, including those who require dementia care within a specialist unit. In additional to being comfortable and attractive, the building would meet with all modern guidelines to ensure the space
is safe for residents and staff – providing high levels of infection control in case of illness.

A number of permanent jobs would be created by a new care home across a range of job types, from higher grade management positions to care workers and ancillary staff.

Example floorplan of the care home

Landscape

The care home would be complimented by rich landscaping, with trees planted along the eastern boundary to provide additional screening and wildlife habitat.

Architects site plan
Landscaped elevation of building
Elevation of building showing trees

Open space

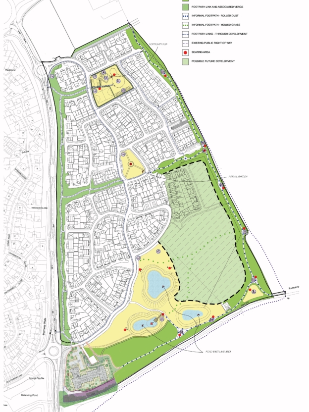
This image was submitted as part of the original planning application for St Mary’s Garden Village and we have added the care home site to it for context. The areas in yellow designate land to be protected as open space. The proposed care home does not infringe on this area. The circular walking route would be maintained, with the footpath being moved slightly to the east along the border of the care home.

The care home plans allow for a 15m buffer zone from the woodland strip and Rudhall Brook, protecting wildlife such as bats, birds, otters and badgers from being impacted, and the planting of new native tree species will provide additional food resource for wildlife once established.

Please click the image to the right to expand and view in more detail.

Site plan showing care home location

Your questions


How would a new care home affect traffic and parking in the area?

By the nature of its use, a care home does not create a high demand for parking. The site would encompass 28 spaces to provide parking for staff and visitors.

Care homes are 24 hour businesses and usually have shift patterns of 08:00 to 14:00, 14:00 to 20:00 and then 20:00 to 08:00. This means that the majority of staff would be entering and leaving the site at off-peak times and therefore should have a minimal effect on local traffic. Visitors to the care home are largely expected at evenings and during weekends.

Would the care home create an additional impact on health services in the area?

The care home is set to meet the need for additional care places in the area, and it’s residents will likely be people who already live locally and are currently accessing health services. Private space can be made available on site for a visiting GP to hold an  in house surgery for residents, delivering multiple consultations in a single visit, reducing the demand for individual appointments at the surgery itself.

The presence of on-site care staff reduces demand on local health services by ensuring early intervention on health issues and providing high standards of personal care which improve general health and wellbeing.

New, high quality care homes can help to relieve pressure on hospitals by providing step-down, rehabilitation or long-term care, which can help to avoid  keeping elderly patients in NHS acute settings for longer than is necessary.

Would the care home overlook nearby homes?

The roof height of the care home would be no higher than that of the neighbouring homes, and its location set back from the road prevents overlooking.

Will the care home be at risk of or cause flooding?

The care home is not located in a flood zone, as it sits higher than Rudhall Brook. Land to the south of the brook is at a lower level and thus more prone to flooding when water levels are high. Data from the environment agency demonstrates that the care home will sit 2.93m above the flood level.

Surface water runoff from the care home would be stored on site and gradually released to a land drain to the west of the site. This drainage network is equipped to withstand the highest rainfall intensities we experience currently, with a 45% allowance for worsening conditions in the future.


Feedback

Thank you for taking the time to read this information. The opportunity for feedback on these proposals has now closed, with planning permission due to be submitted early 2025. This webpage will remain live for your reference and will be updated when there is news on progress.